Description
Krisumi Waterfall Residences Gurgaon
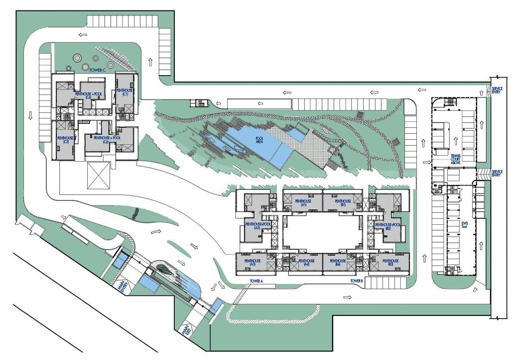
A joint venture between Japan-based Sumitomo Corporation and Gurgaon-based Krishna Group, the Krisumi Waterfall Residencies project in Sector 36A Gurgaon is everything both these companies stand for, quality, efficiency, and timely delivery. The residential project is being developed in 5.43 acres of area and has 3 towers offering 2, 3 and 4 BHK spacious apartments along with all essential amenities.
Krisumi Waterfall Residences has multiple towers standing at a behemoth twenty six floors and offers apartments that are fully furnished and come equipped with high class amenities that is sure to satisfy all of a family’s living necessities. The construction of first phase of Krisumi City Gurgaon is expected to begin this year. The township will be spread over a vast sixty five acres of land, and will feature over 5000 apartments covering approximately 18 million square foot. The project will be developed in 7 to 8 phases over a time span of 10 years. The well known Japanese design firm NIKKEN SEKKEL is the brains behind the architectural design and master plan of this esteemed project. The project will include many luxurious amenities, a luxurious retail mall and well established education institutions just to name a few.
Waterfall Residences Gurgaon lets you pick from a 2 LDK, 3 LDK or 3+S LDK and penthouses that are exceptionally well conceptualized apartments that come at affordable prices where no compromise has been made by the developer in the quality and luxury that will be delivered to each and every one of its residents. Each apartment at this project is planned with great attention paid to each and every detail, with all of the developer’s resource poured into designing and creating a home that boasts loudly about the peaceful setting and lifestyle that it will deliver to you and your family. Every tower at Krusmi City Gurgaon is equipped with seven lifts that makes sure that no resident will have to face a jam packed scenario at the any of the Krisumi City Guragon’s towers. Each and every home inside the towers of this residency will be fully furnished and will provide the all of the amenities that a family require for a pleasant living experience.
If you’ve been looking for a comfortable, luxurious home for your family at a reasonable price, then the homes at Krisumi City Waterfall Residencies would be a worthwhile investment. Our property advisors are always available to help you with any and all regarding purchase, payment and any other information. So book now and avail your dream home and take a step closer to the dream home that a modern family desires for.
PROJECT HIGHLIGHTS:-
- Krisumi Corporation launching soon new project Krisumi City Gurgaon Waterfall Residences with world class amenities.
- 1st phase to have over 450 apartments (1.2 million sq ft) and will be completed in 4-5 years.
- Construction of the 1st phase of the project expected to commence this year.
- Township spread over 65 acres will be developed in 7-8 phases with around 5,000 apartments (18 million sq ft approx) over 10 years.
- The master plan and architectural design of Krisumi City Gurgaon is developed by world renowned Japanese design firm NIKKEN SEKKEI.
- The project will also feature a high-end retail mall, education institutions, a premium hotel and premium office spaces.
Location Advantage
- Krisumi Waterfall Residences has easy connectivity to National Highway 8 and Dwarka Expressway along with Good connectivity to Southern Peripheral Road.
- Krisumi Waterfall Residences is strategically located in sector 36, Gurgaon, barely a few minutes away from the Indira Gandhi International Airport.
- Renowned malls in Delhi like the Raheja Mall and Omaxe Celebration Mall among many other are also easily reachable to cater to all your shopping needs.
- Krisumi Waterfall Residences has easy connectivity to National Highway 8 and Dwarka Expressway along with Good connectivity to Southern Peripheral Road.
- Krisumi Waterfall Residences shares its neighbourhood with well-developed sectors such as Sector 36, 37, 37A, 83, 84..
Amenities
- Club House
- Meditation Center
- Sports Facility
- Kids Play Area
- Swimming Pool
- Gymnasium
- Open Space
- 3 Tier Security
- Park
- 24×7 Water Supply
- Power Backup
- Covered Parking
Price List:
PRICE LIST (EXCLUDING FULLY FURNISHED APARTMENTS)
W.E.F 18.12.2020
| TYPOLOGY |
BOX PRICE |
| 3LDK + S |
| SALEABLE AREA |
| EXCLUSIVE AREA |
| CARPET AREA |
|
| 232.53 – 235.72 SQUARE METRE (2 503 – 2 538 SQUARE FEET) |
| 176.14 – 178.58 SQUARE METRE (1 896 – 1 922 SQUARE FEET) |
| 122.81 – 123.16 SQUARE METRE (1 322 – 1 325 SQUARE FEET) |
|
₹2.26 – 2.43* CRORE |
| 3LDK |
| SALEABLE AREA |
| EXCLUSIVE AREA |
| CARPET AREA |
|
| 180.87 – 183.57 SQUARE METRE (1 946 – 1 976 SQUARE FEET) |
| 137.02 – 139.07 SQUARE METRE (1 474 – 1 497 SQUARE FEET) |
| 93.73 – 96.05 SQ. SQUARE METRE (1 009 – 1 033 SQUARE FEET) |
|
₹1.69 – 1.82* CRORE |
| 2LDK |
| SALEABLE AREA |
| EXCLUSIVE AREA |
| CARPET AREA |
|
| 134.56 – 137.36 SQUARE METRE (1 448 – 1 479 SQUARE FEET) |
| 101.94 – 104.06 SQUARE METRE (1 097 – 1 120 SQUARE FEET) |
| 66.96 SQUARE METRE (720 SQUARE FEET) |
|
₹1.44 – 1.48* CRORE |
PRICE LIST OF 2LDK + PERSONAL WORKSPACE
W.E.F 18.12.2020
| TYPOLOGY |
BOX PRICE |
| 2 LDK + PERSONAL WORKSPACE |
| SALEABLE AREA |
| EXCLUSIVE AREA |
| CARPET AREA |
|
| 180.87 – 181.69 SQUARE METRE (1 946 – 1 955 SQUARE FEET) |
| 137.02 – 137.64 SQUARE METRE (1 474 – 1 481 SQUARE FEET) |
| 93.76 SQUARE METRE (1 009 SQUARE FEET) |
|
₹1.76 – 1.83* CRORE |
PRICE LIST OF FULLY FURNISHED APARTMENTS
W.E.F 18.12.2020
| TYPOLOGY |
BOX PRICE |
| 3LDK + S |
| SALEABLE AREA |
| EXCLUSIVE AREA |
| CARPET AREA |
|
| 234.91 – 235.72 SQUARE METRE (2 528 – 2 538 SQUARE FEET) |
| 177.96 – 178.58 SQUARE METRE (1 915 – 1 922 SQUARE FEET) |
| 123.16 SQUARE METRE ( 1 325 SQUARE FEET) |
|
₹3.16 – 3.18* |
| 3LDK |
| SALEABLE AREA |
| EXCLUSIVE AREA |
| CARPET AREA |
|
| 180.87 – 181.69 SQUARE METRE (1 946 – 1 956 SQUARE FEET) |
| 137.02 – 137.64 SQUARE METRE (1 474 – 1 482 SQUARE FEET) |
| 93.76 SQUARE METRE (1 009 SQUARE FEET) |
|
₹2.43 – 2.45* CRORE |
| 2LDK |
| SALEABLE AREA |
| EXCLUSIVE AREA |
| CARPET AREA |
|
| 134.56 – 137.36 SQUARE METRE (1 448 – 1 479 SQUARE FEET) |
| 101.94 – 104.06 SQUARE METRE (1 097 – 1 120 SQUARE FEET) |
| 66.96 SQUARE METRE (720 SQUARE FEET) |
|
₹1.81 – 1.85* CRORE |
POSSESSION LINK PAYMENT PLAN (35:65)
Valid for limited Inventory & time period
| PAYMENT PLAN |
%DUE |
| ADVANCE AMOUNT ON BOOKING |
₹ 500 000 |
| BOOKING AMOUNT – WITHIN 30 DAYS FROM BOOKING |
10% OF SALE CONSIDERATION (LESS ADVANCE AMOUNT OF ₹ 500 000) + GST +REGISTRATION & STAMP DUTY ON AGREEMENT FOR SALE |
| WITHIN 90 DAYS FROM BOOKING OR COMPLETION OF EXCAVATION WORK, WHICHEVER IS LATER |
25% OF SALE CONSIDERATION + GST |
| ON APPLICATION OF OC |
35% OF SALE CONSIDERATION + GST |
| ON OFFER OF POSSESSION |
30% OF SALE CONSIDERATION + GST + IFMSD+ REGISTRATION & STAMP DUTY ON CONVEYANCE DEED |
SPECIAL PAYMENT PLAN (25:25:50)
| PAYMENT PLAN |
%DUE |
| ADVANCE AMOUNT ON BOOKING |
₹ 500 000 |
| BOOKING AMOUNT – WITHIN 30 DAYS FROM BOOKING |
10% OF SALE CONSIDERATION (LESS ADVANCE AMOUNT OF ₹ 500 000) + GST + REGISTRATION & STAMP DUTY ON AGREEMENT FOR SALE |
| WITHIN 90 DAYS FROM BOOKING OR COMPLETION OF EXCAVATION WORK, WHICHEVER IS LATER |
15% OF SALE CONSIDERATION + GST |
| WITHIN 180 DAYS FROM BOOKING OR COMPLETION OF 8TH FLOOR SLAB, WHICHEVER IS LATER |
25% OF SALE CONSIDERATION + GST |
| ON APPLICATION OF OC |
25% OF SALE CONSIDERATION + GST |
| ON OFFER OF POSSESSION |
25% OF SALE CONSIDERATION + GST + IFMSD + REGISTRATION & STAMP DUTY ON CONVEYANCE DEED |
Location Map:

Site Plan
